Model Studio CS ОПС
|
|
Программа Model Studio CS ОПС предназначена для трехмерного проектирования систем охранно-пожарной сигнализации, СОУЭ, СКУД, систем видеонаблюдения. Функционал программы позволяет создавать зоны ОПС и расставлять извещатели в автоматическом режиме, выполнять проверку расстановки извещателей и подключать их по шлейфу, генерировать планы, структурные схемы и табличную документацию, выполнять компоновку кабельных конструкций любой сложности, производить трассировку и раскладку кабелей.
Программный комплекс Model Studio CS ОПС позволяет разрабатывать и моделировать системы охранно-пожарной сигнализации, системы оповещения и управления эвакуацией, системы контроля и управления доступом, системы видеонаблюдения. Функционал программы также обеспечивает возможность осуществлять прокладку кабелей по кабельным конструкциям, формировать и выпускать кабельный журнал шлейфов, кабельный журнал, спецификацию на оборудование, кабели и кабельные конструкции, ведомости объемов работ, планы расположения оборудования и прокладки кабелей, структурные схемы. Программный комплекс включен в общую технологию проектирования, реализованную в линейке программных продуктов Model Studio CS.
Важнейшие задачи, решаемые этим программным продуктом:
- создание зон ОПС для расчета автоматической расстановки пожарных извещателей;
- автоматическая расстановка пожарных извещателей в зонах ОПС с учетом алгоритма принятия решений о пожаре и решетки расстановки (СП 484.1311500.2020);
- подключение оборудования по шлейфу;
- конструирование и компоновка кабельных конструкций любой сложности в трехмерном пространстве;
- трассировка и раскладка кабелей;
- получение оформленных планов, разрезов и сечений на кабельные конструкции;
- получение структурных схем;
- формирование и выпуск полного комплекта табличной документации по кабельной раскладке — с рамками, штампами, эмблемами и т.п. (в форматах MS Word, MS Excel, nanoCAD/AutoCAD);
- интеграция с программным комплексом для информационной поддержки процессов строительства и эксплуатации промышленных объектов CADLib Модель и Архив.
База данных
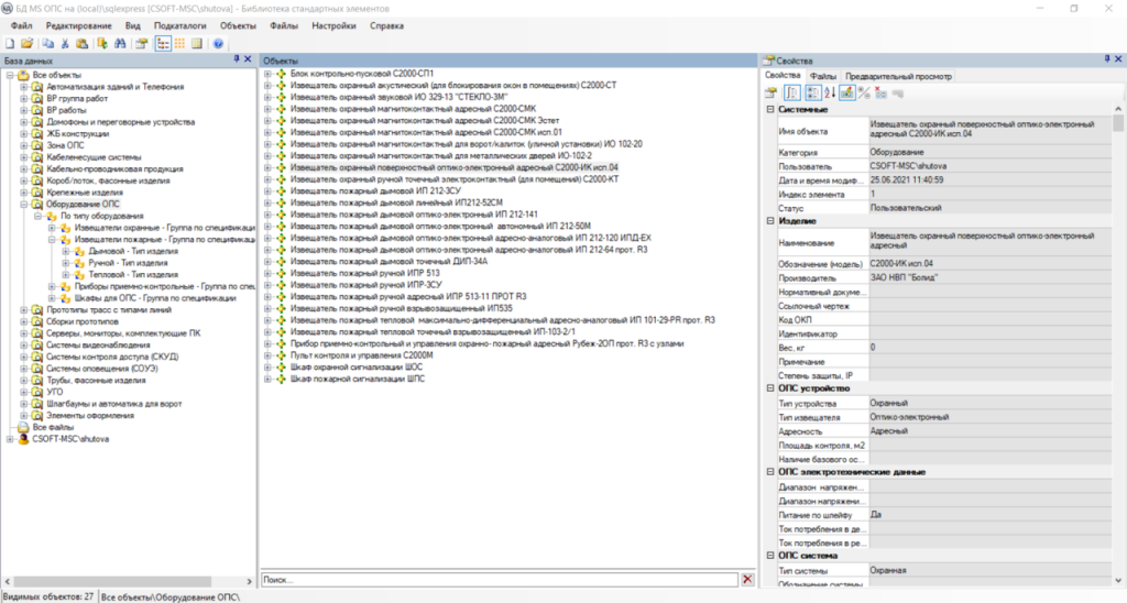
База данных программы Model Studio CS ОПС включает в себя информацию по специализированному оборудованию, изделиям и материалам, применяемым для выполнения трехмерной модели систем охранно-пожарной сигнализации и кабельной раскладки. Данные об объектах базы хранятся в CADLib — Менеджере библиотек стандартных компонентов для линейки программ Model Studio CS, в основу которого положена СУБД Microsoft SQL Server или Postgres. Объекты базы содержат необходимый набор параметров, используемых для выполнения расчетов, разработки проектных решений и оформления проектной документации.
База данных имеет настраиваемую систему классификаторов и выборок, которые помогают пользователю быстро найти необходимое оборудование, определиться с его типоразмерами, а также просмотреть его характеристики. Создавая классификаторы и выборки по заданным правилам, пользователь может сформировать нужное ему для работы отображение содержимого базы. Сформированные подобным образом классификатор или выборка отображаются в виде дерева папок, внутри которых находятся элементы, отвечающие заданным правилам.

Структура базы данных
Обладая интуитивно понятным интерфейсом, Менеджер библиотек стандартных компонентов позволяет не только управлять существующими объектами базы, но и создавать новые, редактировать их параметры, привязывать к ним графическое изображение.
Раздел базы данных «Кабельно-проводниковая продукция» содержит информацию по кабельной продукции, выпускаемой отечественными и зарубежными производителями. Для каждого кабеля здесь приведены сведения, необходимые при выполнении модели кабельной раскладки (тип, обозначение (модель), вес, наружный диаметр, материал изоляции, число и сечение жил), а также при подготовке проектных документов — кабельных журналов и спецификаций (номер ГОСТа или технических условий, код общероссийского классификатора продукции, наименование предприятия-изготовителя, полное наименование модели и т.д.).

Раздел базы данных «Кабельно-проводниковая продукция»
В разделе «Кабеленесущие системы» собрана информация по кабельным конструкциям, из которых состоят сооружения для прокладки кабелей (лотки различных типов, углы поворотов в горизонтальной и вертикальной плоскости, тройниковые и крестообразные секции, стойки, консоли, скобы подвесные и т.д.).

Раздел базы данных «Кабеленесущие системы»
В разделах «Оборудование ОПС», «Системы оповещения (СОУЭ)», «Системы контроля доступа (СКУД)», «Системы видеонаблюдения», «Домофоны и переговорные устройства», «Автоматизация зданий и телефония», «Серверы, мониторы, комплектующие ПК» содержится информация по различному оборудованию, которое может быть задействовано при создании трехмерной модели. Все объекты оборудования имеют узлы подключения (точки, к которым будет подключен кабель). Каждому оборудованию присвоено свое условно-графическое обозначение (УГО) для корректного отображения на плане и на схеме.

Разделы оборудования в базе данных
В программе возможно создание различных компоновочных решений (монтажных узлов), предлагаемых изготовителями. Зачастую одно и то же конструкторское решение может воплощаться разными способами. Программа Model Studio CS ОПС позволяет сформировать такие узлы из отдельных элементов базы и в дальнейшем использовать их при выполнении модели кабельной раскладки. Учет деталей и изделий, из которых состоит монтажный узел, осуществляется программой автоматически.
Создание зон ОПС
Программа Model Studio CS ОПС позволяет создавать зоны ОПС, которые моделируют в трехмерном пространстве объем, подлежащий защите с помощью элементов охранной и пожарной сигнализации. Зона ОПС формируется пользователем путем отрисовки ее контура или же путем считывания контуров объекта проекта «Помещение». При создании зоны ОПС выбирается алгоритм принятия решения о пожаре, от которого будет зависеть автоматическая расстановка пожарных извещателей. Программа позволяет создавать зоны ОПС также для фальшпола и фальшпотолка.

Создание зон ОПС
Автоматическая расстановка пожарных извещателей по СП 484.1311500.2020
Программа Model Studio CS ОПС позволяет автоматически расставлять пожарные извещатели в заранее созданных зонах ОПС. Автоматическая расстановка пожарных извещателей выполняется на основе СП 484.1311500.2020. При этом учитываются алгоритм принятия решения о пожаре (влияет на количество извещателей в зоне) и тип решетки расстановки извещателей (влияет на способ размещения извещателей в зоне относительно друг друга).
Извещатели можно расставлять как с зонами покрытия, так и без них.

Автоматическая расстановка пожарных извещателей
Проверка расстановки пожарных извещателей
Функционал программы позволяет выполнять проверку ручной расстановки пожарных извещателей в зонах ОПС на соответствие требованиям СП 484.1311500.2020, а именно проверки количества извещателей в определенной зоне и расстояния друг от друга и от стен в зоне ОПС. При нарушении условий проверки создается объект «Коллизия». Этот функционал поможет отследить и предотвратить возможные ошибки при проектировании.

Коллизия при расстановке пожарных извещателей
Подключение оборудования и раскладка кабеля
Подключение оборудования в программном комплексе Model Studio CS выполняется с помощью специального окна Менеджера подключений, которое обеспечивает прямой доступ ко всем элементам проектируемой системы, задействованным в соединениях в том или ином месте, а также управление всеми соединениями системы на разных этажах и в разных помещениях. Этот редактор позволяет подключать оборудование по шлейфу, выбирать и изменять тип кабельной группы для каждого кабеля.

Менеджер подключений

Выбор кабельной группы при подключении кабеля
Для подключения достаточно выбрать из базы данных кабель, указать оборудование и узел, к которому необходимо подключить оборудование, выбрать тип подключения, ввести номер шлейфа (если оборудование подключается по шлейфу), выбрать кабельную группу для подключаемого кабеля, а затем сохранить изменения. Model Studio CS ОПС определяет кратчайший путь по трассам от одного объекта до другого. В окне Менеджера подключений можно менять порядок следования извещателей в шлейфе, замыкать/размыкать шлейф, подключать извещатели к уже созданному шлейфу. После подключения информацию о созданных кабельных связях также можно посмотреть в Менеджере подключений в окне Подключения. Атрибуты оборудования и кабелей доступны для редактирования.

Подключение оборудования

Визуальное отслеживание прокладки кабеля в трехмерном пространстве
Прокладка кабелей осуществляется по кабельным конструкциям, для проектирования которых требуется выбрать нужные детали из базы данных и разместить их на модели. Все кабельные конструкции — это «умные» объекты программы, способные автоматически определять в пространстве свое положение относительно друг друга. Например, достаточно потянуть лоток за «ручку» — и он растянется на требуемую длину; аналогично ведут себя и кабельные эстакады. Кабельные конструкции Model Studio CS можно копировать, перемещать, поворачивать — на них распространяются все функции и команды графической платформы.
Доступна трассировка кабельных конструкций по миникаталогам (заранее подготовленным наборам конструкций) с автоматической подстановкой углов поворота, тройников, крестовин.

Проектирование кабельных конструкций
Получение табличной документации
Спецификацию на оборудование, кабели и кабельные конструкции можно вывести в требуемый формат выходного документа. Перечень и количество примененных изделий вы можете в режиме реального времени просмотреть непосредственно в программе: для этого предназначен специализированный инструмент — Спецификатор.

Просмотр спецификации в Спецификаторе

Готовая для печати заказная спецификация в формате MS Word
Кабельный журнал и кабельный журнал шлейфов также можно отслеживать в режиме реального времени в Спецификаторе или вывести в требуемый формат выходного документа.

Готовый для печати кабельный журнал в формате MS Excel

Готовый для печати кабельный журнал шлейфов в формате MS Excel
Ведомость объемов работ аналогичным образом можно отслеживать в режиме реального времени или вывести в требуемый формат выходного документа.

Готовая для печати ведомость объемов работ в формате MS Excel
Получение графической документации
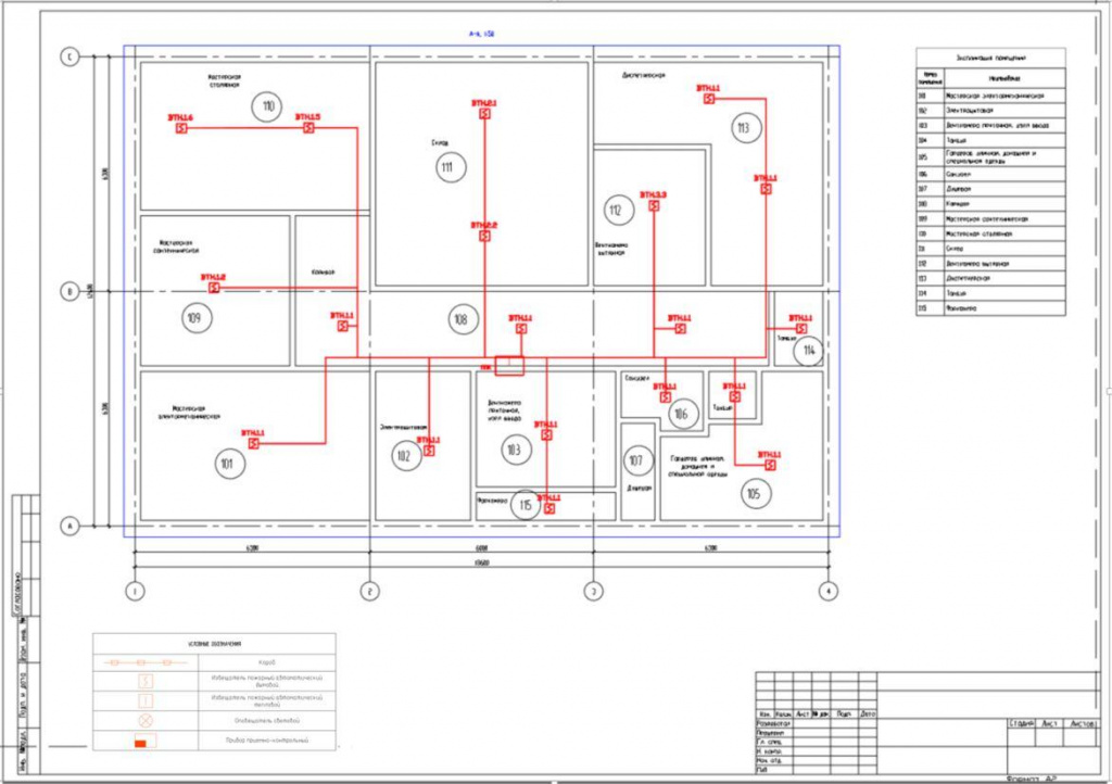
Программа позволяет получить план расположения оборудования и прокладки кабелей и сечений по кабельным конструкциям с выносками, обозначениями и подписями. Достаточно указать места сечений, при этом программа автоматически проставляет выноски с позициями кабелей, проложенных в данном месте.

Готовый для печати план пожарной сигнализации
Также программа позволяет сгенерировать таблицу с условными обозначениями оборудования и типами линий на плане/схеме.

Таблица условных обозначений
Генерация экспликации помещений в Model Studio CS ОПС.

Экспликация помещений
Генерация структурных схем в Model Studio CS ОПС.

Структурная схема ОПС
Назад в раздел




